自然災害に強く、
壁式構造の制約を超える独自工法
壁式特殊™構造
SPECIAL WALL-STRUCTURED CONSTRUCTION
はじめに Introduction
自然災害を面で受け止める。
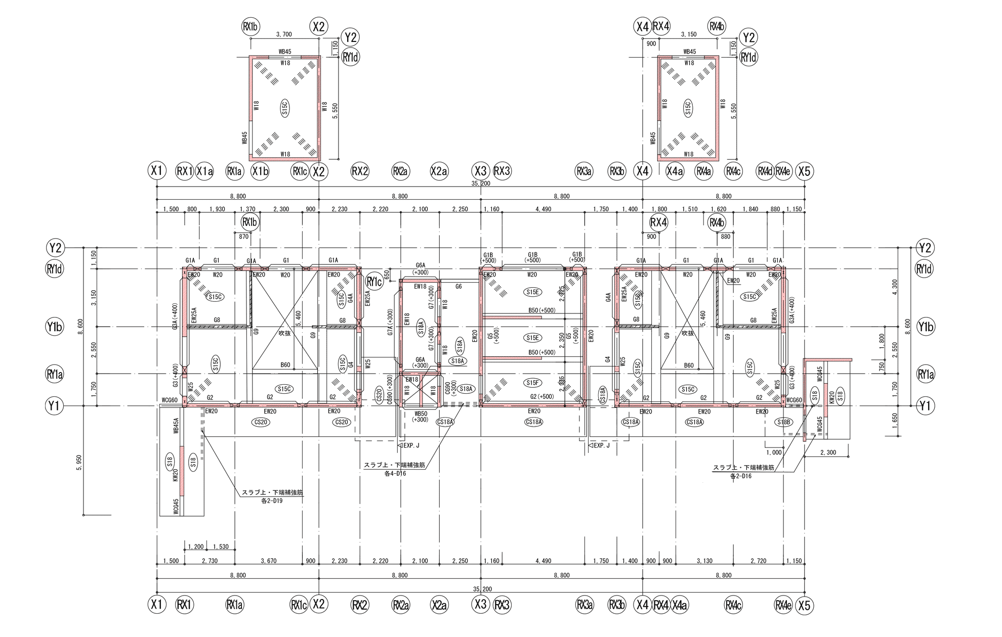
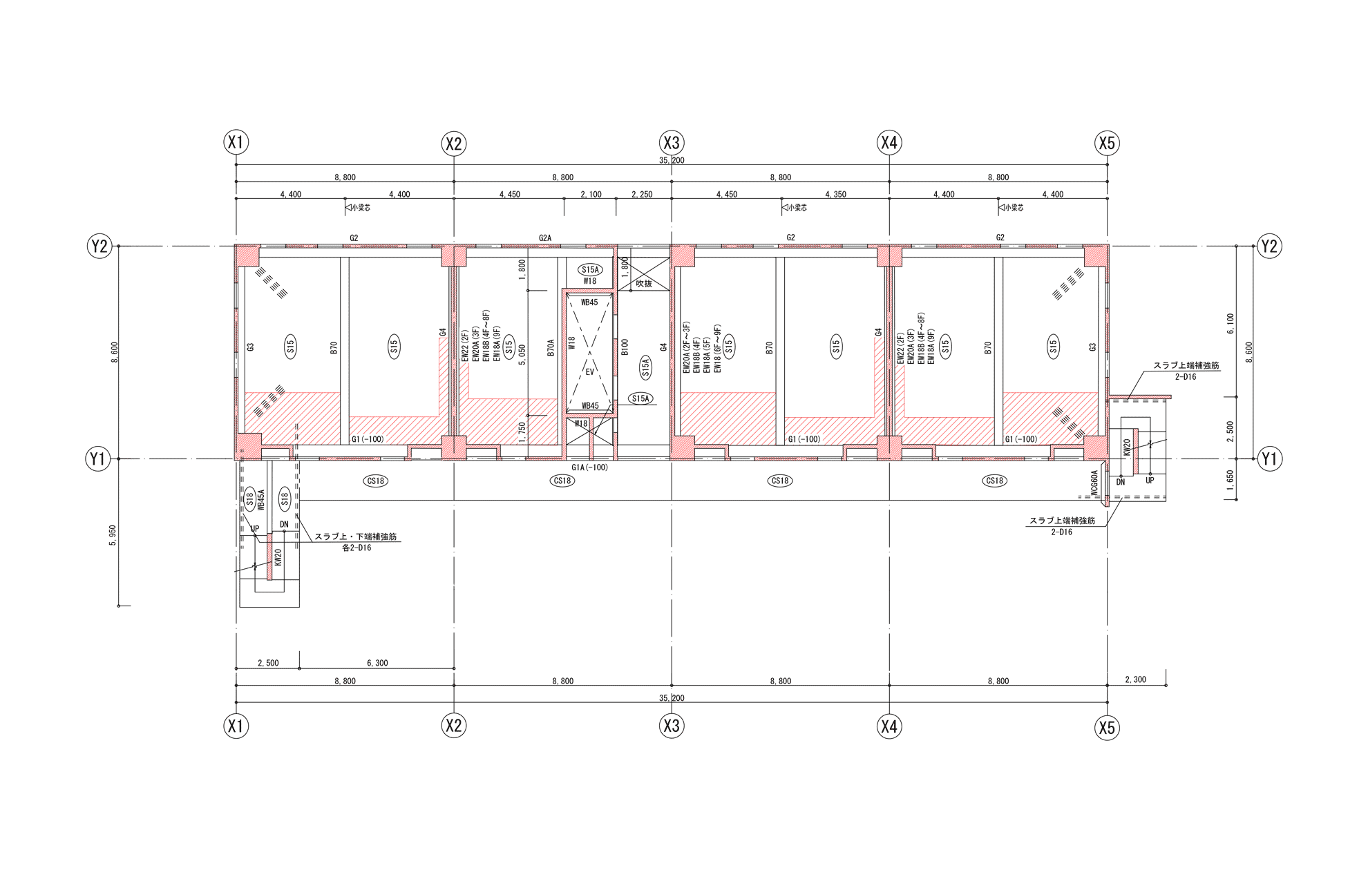
空間効率と耐震性能を両立する独自工法「壁式特殊™構造」
壁式特殊™構造は、弊社が独自に開発し特許を取得した壁式工法です。
従来の壁式構造が告示により原則5階建てまでに制限される中で、本工法では壁構面のみを主体とした架構のまま、建物規模の制限を受けずに設計できることを最大の特徴としています。
中高層化を実現する革新的壁式構造システム
柱型・梁型を一切持たない純粋な壁式架構を維持しながら、 独自の壁量計画・開口補強ディテール・雑壁活用理論など特許技術を体系化することで、中高層への適用を可能とし、現状では15階建てまでの設計実績があります。
従来の壁式構造では実現が難しかった規模・階数の建物を可能にする、革新的な次世代型の工法です。
※「壁式特殊」、「特殊壁式」は株式会社田中構造設計の商標です。
工法のメリット Benefits of the Construction Method
壁式特殊™構造で
可能となる構造形式
Achievable Structural System
最上階を、ただの最上階で終わらせない。
壁式特殊™構造が、建物に「特別階」という価値を与える。
一般的なマンションはラーメン構造を採用するため、最上階だけ間取りを変える、フラット天井にする、広い居住空間を設ける。そんな当たり前の要望ですら、構造上の制約で叶わないことが多々あります。しかし壁式特殊™構造であれば、それが可能になります。
ラーメン構造の建物であっても、最上階のみ壁式特殊™構造へ切り替えるハイブリット構造により、以下のような通常では不可能な設計が実現可能となります。
- 最上階だけ柱・梁のない無垢のフラット空間に
- ペントハウスのような特別住戸を構築
- 最上階の間取りを自由に再構成
- 上階だけ大きくセットバックした開放的な空間へ
壁式特殊™構造に関する
ご相談について
About Consultations
壁式特殊™構造は特許取得済みの高難度専門技術であるため、本工法の設計提供については 既に通常業務をお任せいただいているお客様を対象としております。
まずは一般的なRC構造(壁式5階建て、ラーメン構造等)で当社の設計品質や連携体制をご確認いただきながら、その後に壁式特殊™構造をご検討いただく流れとなります。
初回から壁式特殊™構造のみの業務依頼は受付を行っておりません。長期的なパートナーとしてお付き合いいただけるお客様へ、責任ある形で技術提供を行うことを大切にしています。
お問い合わせ・ご相談
田中構造設計(福岡事務所) 092-406-7779
電話受付時間 土曜を除く平日 9:00~18:00







